Kaufpreis: 1.950.000€
Wohnfläche: m²
Nutzfläche: m²
Zimmer:
Grundstücksfläche: m²
Kosten
Ausstattung
Allgemein
Energieausweis
Teilen
Beschreibung
Exklusives Baugrundstück mit genehmigtem Wohnprojekt in Kehlen-Olm – 4 Wohneinheiten
Zum Verkauf steht ein attraktives und exklusives Baugrundstück in der Gemeinde Kehlen, Ortsteil Olm. Der Kaufpreis beträgt 2.000.000 €, inklusive Verkäuferprovision. Die Provision in Höhe von 3 % ist im Kaufpreis enthalten und wird vom Verkäufer übernommen.
Projektbeschreibung & Baugenehmigung
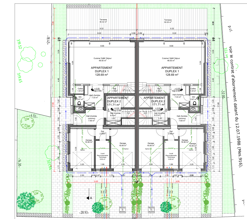
Für das Grundstück liegt eine genehmigte Bauplanung für ein hochwertiges Mehrfamilienhaus mit vier modernen Wohneinheiten vor:
2 Wohnungen mit Privatgarten
2 Wohnungen mit Fahrstuhlzugang
Die vollständige Projektplanung ist im Kaufpreis enthalten und ermöglicht einen zeitnahen Baustart.
Wohnflächen im Überblick
Wohnung 1 – Erdgeschoss mit Garten: ca. 128 m²
Wohnung 2 – Obergeschoss mit Fahrstuhl: ca. 171 m²
Wohnung 3 – Erdgeschoss mit Garten: ca. 128 m²
Wohnung 4 – Obergeschoss mit Fahrstuhl: ca. 171 m²
Weitere Informationen
Ein Energieausweis ist bereits angefragt und liegt zur Besichtigung vor.
Anmerkung
Die von uns gemachten Informationen beruhen auf Angaben des Hauseigentümers. Für die Richtigkeit und Vollständigkeit der Angaben kann keine Gewähr bzw. Haftung übernommen werden. Bei Erfolg eines Kaufvertrages wird eine Vermittlungs-/ Maklerprovision in Höhe von 3,57 % inklusive 19 % Mehrwertsteuer auf den Kaufpreis vom Käufer fällig.
Kontaktdaten
Mia Casa Immobilien
Provinzialstr. 105
66740 Saarlouis
Büro: +49 68 31 / 890 66 80
Mail: info@mia-casa-immobilien.de
Kontaktformular
Davide Sorce
Baugrundstück in Olm
Energieausweis
Exklusives Baugrundstück mit genehmigtem Wohnprojekt in Kehlen-Olm – 4 Wohneinheiten
Zum Verkauf steht ein attraktives und exklusives Baugrundstück in der Gemeinde Kehlen, Ortsteil Olm. Der Kaufpreis beträgt 2.000.000 €, inklusive Verkäuferprovision. Die Provision in Höhe von 3 % ist im Kaufpreis enthalten und wird vom Verkäufer übernommen.
Projektbeschreibung & Baugenehmigung
Für das Grundstück liegt eine genehmigte Bauplanung für ein hochwertiges Mehrfamilienhaus mit vier modernen Wohneinheiten vor:
2 Wohnungen mit Privatgarten
2 Wohnungen mit Fahrstuhlzugang
Die vollständige Projektplanung ist im Kaufpreis enthalten und ermöglicht einen zeitnahen Baustart.
Wohnflächen im Überblick
Wohnung 1 – Erdgeschoss mit Garten: ca. 128 m²
Wohnung 2 – Obergeschoss mit Fahrstuhl: ca. 171 m²
Wohnung 3 – Erdgeschoss mit Garten: ca. 128 m²
Wohnung 4 – Obergeschoss mit Fahrstuhl: ca. 171 m²
Weitere Informationen
Ein Energieausweis ist bereits angefragt und liegt zur Besichtigung vor.
Die von uns gemachten Informationen beruhen auf Angaben des Hauseigentümers. Für die Richtigkeit und Vollständigkeit der Angaben kann keine Gewähr bzw. Haftung übernommen werden. Bei Erfolg eines Kaufvertrages wird eine Vermittlungs-/ Maklerprovision in Höhe von 3,57 % inklusive 19 % Mehrwertsteuer auf den Kaufpreis vom Käufer fällig.
Mia Casa Immobilien, Provinzialstr. 105, 66740 Saarlouis, www.mia-casa-immobilien.de
Tel.: +49 (0) 6831 / 890 668 0, Mobil: +49 (0) 160 33 44 955, Fax: +49 (0) 6831 / 890 668 1, Mail: info@mia-casa-immobilien.de
Ausstattung
Allgemein
Die von uns gemachten Informationen beruhen auf Angaben des Hauseigentümers. Für die Richtigkeit und Vollständigkeit der Angaben kann keine Gewähr bzw. Haftung übernommen werden. Bei Erfolg eines Kaufvertrages wird eine Vermittlungs-/ Maklerprovision in Höhe von 3,57 % inklusive 19 % Mehrwertsteuer auf den Kaufpreis vom Käufer fällig.
Mia Casa Immobilien, Provinzialstr. 105, 66740 Saarlouis, www.mia-casa-immobilien.de
Tel.: +49 (0) 6831 / 890 668 0, Mobil: +49 (0) 160 33 44 955, Fax: +49 (0) 6831 / 890 668 1, Mail: info@mia-casa-immobilien.de
Baugrundstück in Olm
www.mia-casa-immobilien.de
66740 Saarlouis
66793 Saarwellingen
Tel.: +49 (0)6831 890 668-0
